 
                     
                       
                    


.雙作用,可推拉應用,內設安全閥,可承受5一8%偏載而不會損傷油缸。
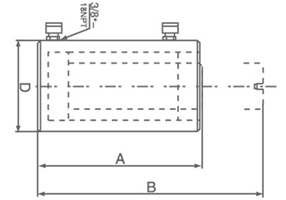
| 型號 | 負載 T | 行程 mm | 本體高度 mm | 外徑 mm | 液壓油容量 cm³ | 活塞直徑 mm | 重量 kgs | 
| SL-CLRG-502 | 50 | 50 | 162 | 128 | 385 | 70 | 17 | 
| SL-CLRG-504 | 100 | 212 | 128 | 770 | 70 | 20 | |
| SL-CLRG-506 | 150 | 262 | 128 | 1155 | 70 | 25 | |
| SL-CLRG-508 | 200 | 312 | 128 | 1540 | 70 | 35 | |
| SL-CLRG-5010 | 250 | 362 | 128 | 1924 | 70 | 31 | |
| SL-CLRG-5012 | 300 | 412 | 128 | 2309 | 70 | 34 | |
| SL-CLRG-1002 | 100 | 50 | 182 | 178 | 664 | 95 | 19 | 
| SL-CLRG-1004 | 100 | 232 | 178 | 1327 | 95 | 29 | |
| SL-CLRG-1006 | 150 | 282 | 178 | 1991 | 95 | 40 | |
| SL-CLRG-1008 | 200 | 332 | 178 | 2655 | 95 | 50 | |
| SL-CLRG-10010 | 250 | 382 | 178 | 3318 | 95 | 61 | |
| SL-CLRG-10012 | 300 | 432 | 178 | 3982 | 95 | 71 | |
| SL-CLRG-1502 | 150 | 50 | 196 | 218 | 993 | 114 | 39 | 
| SL-CLRG-1504 | 100 | 246 | 218 | 1986 | 114 | 52 | |
| SL-CLRG-1506 | 150 | 296 | 218 | 2978 | 114 | 65 | |
| SL-CLRG-1508 | 200 | 346 | 218 | 3971 | 114 | 78 | |
| SL-CLRG-15010 | 250 | 396 | 218 | 4964 | 114 | 92 | |
| SL-CLRG-15012 | 300 | 446 | 218 | 5957 | 114 | 105 | |
| SL-CLRG-2002 | 200 | 50 | 216 | 245 | 1330 | 133 | 55 | 
| SL-CLRG-2006 | 150 | 316 | 245 | 3989 | 133 | 91 | |
| SL-CLRG-2008 | 200 | 366 | 245 | 5000 | 133 | 110 | |
| SL-CLRG-20012 | 300 | 446 | 245 | 7977 | 133 | 146 | |
| SL-CLRG-2502 | 250 | 50 | 235 | 275 | 1832 | 165 | 89 | 
| SL-CLRG-2506 | 150 | 335 | 275 | 5497 | 165 | 136 | |
| SL-CLRG-2508 | 200 | 385 | 275 | 7200 | 165 | 170 | |
| SL-CLRG-25012 | 300 | 485 | 275 | 10993 | 165 | 207 | |
| SL-CLRG-3002 | 300 | 50 | 312 | 325 | 2281 | 171 | 184 | 
| SL-CLRG-3006 | 150 | 412 | 325 | 6843 | 171 | 232 | |
| SL-CLRG-3008 | 200 | 462 | 325 | 8900 | 171 | 270 | |
| SL-CLRG-30012 | 300 | 562 | 325 | 13685 | 171 | 303 | |
| SL-CLRG-4002 | 400 | 50 | 375 | 376 | 2800 | 190 | 270 | 
| SL-CLRG-4006 | 150 | 475 | 376 | 8399 | 190 | 330 | |
| SL-CLRG-4008 | 200 | 525 | 376 | 11500 | 190 | 380 | |
| SL-CLRG-40012 | 300 | 625 | 376 | 16797 | 190 | 421 | |
| SL-CLRG-5002 | 500 | 50 | 419 | 425 | 3653 | 241 | 401 | 
| SL-CLRG-5006 | 150 | 519 | 425 | 10959 | 241 | 480 | |
| SL-CLRG-5008 | 200 | 569 | 425 | 15630 | 241 | 510 | |
| SL-CLRG-50012 | 300 | 669 | 425 | 21918 | 241 | 599 | |
| SL-CLRG-6002 | 600 | 50 | 429 | 498 | 4276 | 266 | 474 | 
| SL-CLRG-6006 | 150 | 529 | 498 | 12829 | 266 | 565 | |
| SL-CLRG-6008 | 200 | 579 | 498 | 18009 | 266 | 620 | |
| SL-CLRG-60012 | 300 | 679 | 498 | 25659 | 266 | 701 | |
| SL-CLRG-8002 | 800 | 50 | 474 | 530 | 5881 | 317 | 741 | 
| SL-CLRG-8006 | 150 | 574 | 530 | 17644 | 317 | 868 | |
| SL-CLRG-8008 | 200 | 624 | 530 | 25000 | 317 | 950 | |
| SL-CLRG-80012 | 300 | 724 | 530 | 35288 | 317 | 1058 | |
| SL-CLRG-10002 | 1000 | 50 | 564 | 608 | 7329 | 343 | 1062 | 
| SL-CLRG-10006 | 150 | 664 | 608 | 21986 | 343 | 1213 | |
| SL-CLRG-10008 | 200 | 714 | 608 | 32896 | 343 | 1300 | |
| SL-CLRG-100012 | 300 | 814 | 608 | 43972 | 343 | 1439 | 
